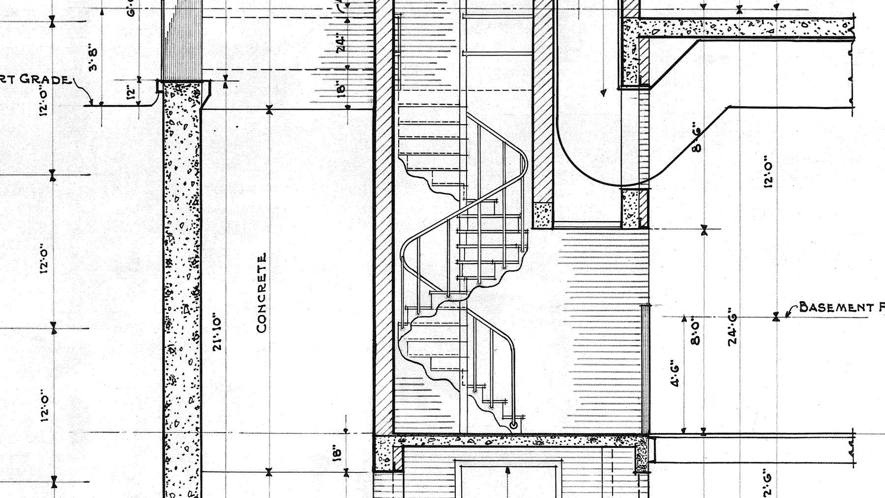
Sheet 13 - CROSS SECTIONS
Western University, Western Archives,
Edward H. Hagarty Collection of Architectural Records3
Sheet 13 - CROSS SECTIONS
Western University, Western Archives,
Edward H. Hagarty Collection of Architectural Records4
Sheet 13 - CROSS SECTIONS
Western University, Western Archives,
Edward H. Hagarty Collection of Architectural Records5
Sheet 13 - CROSS SECTIONS
Western University, Western Archives,
Edward H. Hagarty Collection of Architectural Records2
Sheet 13 - CROSS SECTIONS
Western University, Western Archives,
Edward H. Hagarty Collection of Architectural Records6
Sheet 13 - CROSS SECTIONS
Western University, Western Archives,
Edward H. Hagarty Collection of Architectural Records7