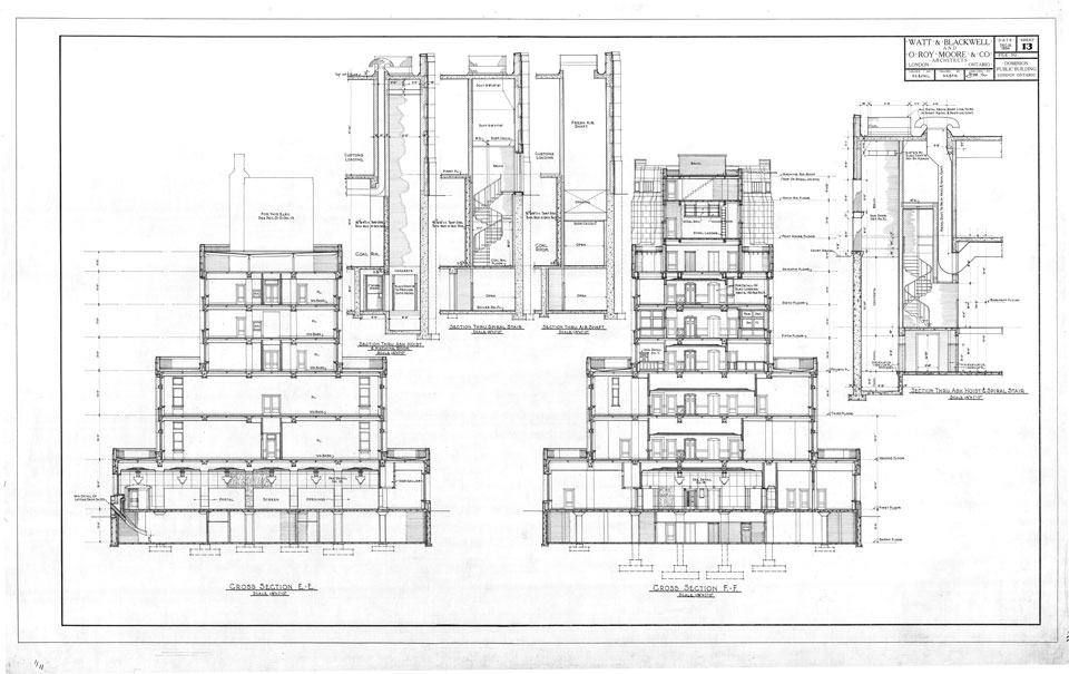
Architectural Drawings - Sections E and F
The Dominion Public Building: The Architectural Drawings - Sections e and F
www.dominionpublicbuilding.ca/13.html
ABOUT
SCREENINGS
DEPRESSION YEARS
A RELIEF MEASURE
THE CONSTRUCTION ACT
JOB MARKET
Short Film
DRAWINGS
ELEVATION
PLANS AND SECTIONS
DETAILS
DESIGNERS
ARCHITECTURAL VALUE
ART DECO ELEMENTS
INAUGURATION
OTHER BUILDINGS
CONSTRUCTION SITE
A CLOSER LOOK
POSTAL WORKERS
EMPLOYMENT TODAY
PEOPLE
THE YEAR OF THE 3 KINGS
ROYAL VISIT
WAR
DESIGNATION
TODAY
SERVICES
CREDITS
FLOORS PLANS AND CROSS SECTIONS
|
SECTIONS "E" AND "F"
MEDIUM SIZE
LARGE SIZE
Sheet 13 - CROSS SECTIONS
Western University, Western Archives,
Edward H. Hagarty Collection of Architectural Records
A documentary project by Juan Andres Bello, with the support of The London Heritage Council
© 2015 TRIANA MEDIA